電抗器光纖測溫系統解決方案
電抗器為什么要測溫,電抗器光纖測溫系統
電抗器是遠距離輸電系統的主要輔助設備,因其優越的電氣性能,在電力輸運中起著重要作用。電抗器在運行過程中,往往會因為一些外部環境、自身結構等原因,導致電抗器在運行過程中會產生局部溫升過高、過熱,并最終導致電抗器的局部燒壞,甚至報廢。這給國家和企業帶來較大的經濟損失。因此,采用電抗器光纖測溫系統、實時監測電抗器內部溫度,具有重要的意義和重大的實用價值。
電抗器光纖測溫采用的是熒光式光纖測溫裝置,該裝置的傳感探頭無金屬材料采用進口石英光纖具有完全的電絕緣性,不受高壓、強電磁場的影響,抗化學腐蝕和無污染,并且響應速度快,安裝簡單,耐高溫,后臺軟件實時在線監測。
電抗器光纖測溫系統目的
- 當電抗器發送異?;蚬收蠒r,電抗器的故障區域發熱,溫度上升。通過對溫度進行監測可以判斷電抗器的運行狀態,從而達到保護電抗器的目的。
- 一般的溫度測量裝置無法進行電抗器內部溫度的測量,從而為解決這一難題,我公司研發的熒光式光纖測溫系統就能通過其不受干擾且耐高溫高壓的特性來解決這一難題。
電抗器光纖測溫主機設計原則
- 實用性原則
系統建設堅持實用性原則,在實用的基礎上考慮了先進性和前瞻性,選用符合標準的,先進成熟的產品和開發平臺,構建一個切合實際、解決實際問題的系統。
- 標準化原則
業務應用具有業務復雜、流程繁多、信息量大、應用層次多的特點,通過統一的應用功能規劃,實現在應用層面上就業務運作達成共識,指導各業務單位以統一標準開展業務。
同時業務應用建設所采用的系統軟硬件平臺和應用開發工具應符合國家標準、信息產業部標準、公司相關技術規范和要求。
- 統一性原則
遵循信息集中管理、統籌規劃、整體設計、分步實施的方針,在實施過程中體現四統一原則:統一領導、統一規劃、統一標準和統一組織實施。
- 可靠性原則
軟硬件資源需要保障電纜測溫系統的7×24小時不間斷、可靠運行,因此必須配備完善的可靠性措施設計,保證系統運行的高度可靠,充分考慮系統關鍵應用的可靠性要求。
- 可靠的安全機制
本系統采用一系列安全的加密措施,內置64位加密算法,系統的安全性更高能夠有效防止數據的泄漏和竊取,保證系統的數據安全、準確和完整,防止非法操作員的操作和合法操作員非法的操作。一套系統可能有多個操作人員使用,為保證系統的安全性,實行分級權限管理。系統管理員授權操作員不同的使用權限,每個操作員只能執行權限范圍內的各種操作,系統安全性更高。
- 操作界面簡潔、友好,智能化程度高
系統提供了運行過程中需要的大多數缺省數據,各項操作符合實際業務的工作流程避免了操作員的重復操作。系統對輸入的數據自動進行合法性檢查,對操作人員的誤操作也進行了友好的提示。
- 系統結構設計合理,程序功能模塊抽象程度高
可根據用戶的實際情況的變化和不同用戶的各種不同需要,靈活地加以配置,最大限度地滿足用戶的需求。有多樣的費率管理,多類型表管理等功能供用戶更好的使用本系統。
- 系統采用Web Service平臺,B/S架構設計,符合應用發展的趨勢。
- 運行穩定,數據可靠,幾千個系統的實際運行及每年新增200多個項目。
- 平臺操作簡便,易于掌握,安裝過程簡單??梢詫祿葱枰詣由筛鞣N報表,提高管理效率。
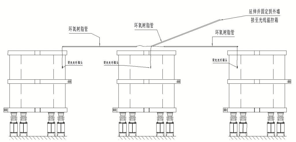
電抗器測溫布線安裝介紹

光纖安裝示意圖

熒光式光纖測溫終端嵌入安裝在箱體,引出的光纖往墻體上部走,高度需要超過電抗器高度,經過安裝在墻壁的環氧樹脂管,三根光纖匯總進入B相電抗器;B相光纖直接安裝在電抗器內部氣道壁內;A、C兩相分別經過架空絕緣的環氧樹脂管引致A相、C相電抗器,安裝在電抗器內部氣道壁內。
熒光式光纖測溫系統應用功能
熒光式光纖測溫系統實時監測
可根據客戶需求設定數據采集密度,系統根據設定的參數定時采集數據,然后將以表格形式顯示或繪制曲線方式顯示,達到實時監測的目的。實時監測設備工作狀況;實時監測記錄電抗器溫度情況。
熒光式光纖測溫系統基本功能
1)溫度數據查詢
可以查詢指定日期的溫度數據,可以瀏覽、打印、導出到EXCEL。
2)歷史溫度數據存儲
3)永久記錄溫度數據
熒光式光纖測溫系統安全設計
系統的安全是至關重要的,因此在主站系統設計中,充分考慮到系統的安全性,防止非授權需方的侵入和機密信息的泄漏。從主站系統安全防護來說,系統在通訊通道和系統數據兩個大的方面都進行安全性防護。
熒光式光纖測溫系統數據安全
具備操作系統級、數據庫級和應用軟件級三級安全機制。
- 操作系統級:在網絡設置不同權限密碼,非系統管理員不能操作服務器和數據庫,并通過路由、防火墻等設置保證系統的安全和相對獨立。
- 數據庫級:在數據庫中設置有不同權限的需方和相應密碼,保證非法需方不能使用數據,不同需方不能越級使用數據。
- 應用軟件級:提供嚴格的用戶登錄驗證、權限控制和完善的事件日志和操作記錄的管理。系統權限控制包括功能權限控制和數據訪問權限控制。
功能權限控制:
功能權限控制系統從控制對象、對象操作和操作人員三個維度進行權限管理,在此基礎上提供控制對象組、操作組和操作人員角色的授權方式,權限控制的精確度可以到具體的控制對象和操作人員,系統根據三個維度確定登錄人員的操作權限。
- 系統的控制對象包括系統層次節點、終端設備等,每種控制對象都有相應的操作,每一個授權都包括一個控制對象組、一個操作或操作組、一個操作人員角色三個部分,為了權限管理的簡潔和方便,系統提供了控制對象組權限繼承。
- 系統提供分級授權的機制,使系統具備了分布式權限管理的能力,解決了權限管理過于復雜的問題。
數據訪問權限:
數據訪問權限控制機制采用數據庫提供的安全審核機制,提供數據訪問用戶控制,并對所有數據操作都提供日志審核。
- 原始數據庫僅具有查詢功能,所用應用只對應用數據庫操作,以確保數據的安全。
- 系統可對帶時標的電量數據和各種分析應用計算數據存儲,保存時間超過2年,此外系統具備功能強大的備份子系統。
- 對所有人工干預的數據有詳細的操作日志記錄。系統設計保證高容錯性,數據庫具有字段級、記錄級、數據庫級三級數據的合理性檢驗,確保非法數據的存入。
電抗器光纖測溫設備介紹
1.1?主要特點
熒光式光纖溫控器為嵌入式安裝。該產品在高電壓、強電磁干擾、等特殊環境下測溫有著獨特的技術優勢。使用熒光式光纖溫度傳感器的溫度熱點與測量信號接收部分沒有使用電氣連接,能長期高精度和高穩定度工作,這大大提高了其應用范圍。與此同時,光纖溫度控制器有效地解除了電抗器在運行過程中會產生局部溫升過高、過熱,最終導致電抗器的燒壞、報廢,不利于電抗器的安全運行等這些方面的隱患。光纖溫度控制器的精度及靈敏度高且耐高壓可遠程監測、壽命長,體積小、使得儀表維護簡易方便,運輸安全。其內部模塊化集成設計,美觀合理。
1.2?主要功能
- 可安裝集成多路熒光光纖測溫解調儀;
- LED數碼管巡回顯示電抗器熱點溫度;
- 提供RS485通訊接口與上位機儀表連接并提供溫度采集與傳輸;
- 風機啟停功能,提供一對風機控制輸出觸點(AC220V,10A);
- 超溫報警功能,超溫跳閘功能,溫控故障報警功能,各提供一對常開輸出干接點。
1.3??技術參數
| 環境溫度 | -10℃~+75℃ | ||
| 環境濕度 | <90% | ||
| 工作電壓 | AC220V | ||
| 測溫范圍 | -30℃~+200℃ | ||
| 分辨率 | 0.1℃ | ||
| 測量精度 | ±1℃ | ||
| 測溫通道數 | 3路 | ||
| 光纖探頭耐壓 | 100KV(40mm耐壓長度、5min耐受時間) | ||
| 光纖探頭直徑 | 3.0mm | ||
| 光纖光纜長度 | 3m(可定制) | ||
| 光纖類型 | 石英 | ||
| 功耗 | ≤1W | ||
| 通訊方式/規約 | RS485/Modbus-RTU | ||
| 探頭 | 熒光式光纖探頭 | ||
| 存儲溫度 | -30℃~85℃ | ||
| 默認通訊配置 | 通訊地址 | 通訊波特率 | 通訊校驗位 |
| 1 | 9600 | 無校驗 | |
| 管理認證標準 | ISO9001:2008國際質量管理體系認證 | ||
| 檢驗實驗標準 | IEC61000-4:1995 國際標準 | ||
| GB/T17626-2008《電磁兼容試驗和測量技術》標準 | |||

